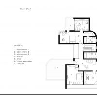
Denumire proiect: Casa 10
Amplasament: -
Perioada de realizare a proiectului: 2014
Stadiul proiectului: propunere
Suprafaţă teren: 500 mp
Suprafaţă construită: 162.00 mp
Suprafaţă desfăşurată: 327.00 mp
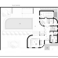
Denumire proiect: Casa 10
Amplasament: -
Perioada de realizare a proiectului: 2014
Stadiul proiectului: propunere
Suprafaţă teren: 500 mp
Suprafaţă construită: 162.00 mp
Suprafaţă desfăşurată: 327.00 mp