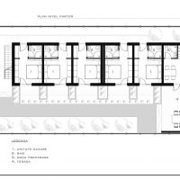
Denumire proiect: Pensiune Costinesti
Amplasament: -
Perioada de realizare a proiectului: 2014
Stadiul proiectului: in curs de executie
Suprafaţă teren: 500 mp
Suprafaţă construită: 126.50 mp
Suprafaţă desfăşurată: 253.00 mp
Denumire proiect: Pensiune Costinesti
Amplasament: -
Perioada de realizare a proiectului: 2014
Stadiul proiectului: in curs de executie
Suprafaţă teren: 500 mp
Suprafaţă construită: 126.50 mp
Suprafaţă desfăşurată: 253.00 mp